Porta sezionale Hörmann 3 m x 2 m
Porta sezionale Hörmann 3 m x 2 m
Martina Franca

Porta sezionale Hörmann 3 m x 2 m

2.000€



Descrizione

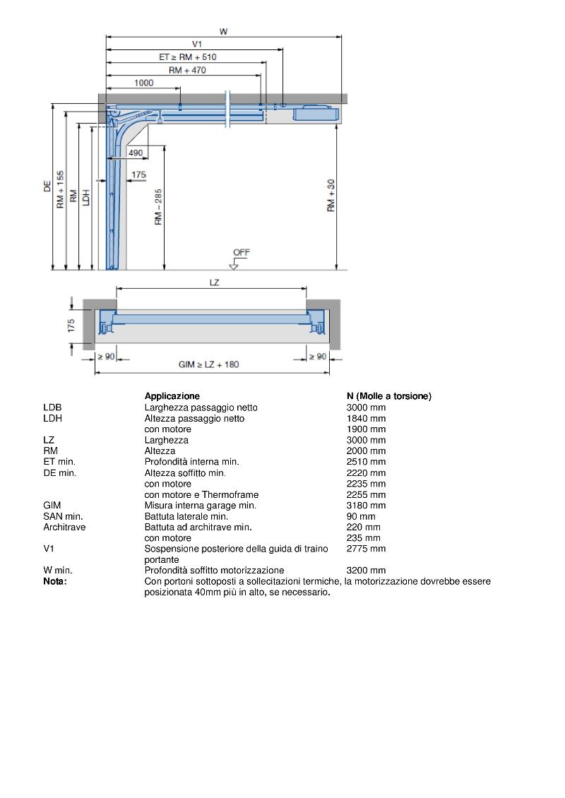
Vendo porta sezionale Hörmann, larghezza x altezza 3 m x 2 m, con grecatura L goffrato legno color bianco traffico; molle a torsione; pacco telaio; portina pedonale con soglia bassa; motorizzata; maniglia sagomata color grigio antracite. Vendita solo fornitura. Pagamento in contanti o bonifico anticipato. Ritiro da valutare in base alla località di destinazione. Per maggiori info, contattami.


Caratteristiche

  • Condizioni: Mai usato, è nuovo!
  • Spedizione disponibile: No